Debeskalns
Three materials dominate this journey - the shore, the sea, and the sky. The shore, often accompanied by a forest, alternating between steep cliffs, caverns, sandy dunes and rocky beaches, is the last barrier of civilization. The sea, an indication of something beyond. The sky, a reminder of the past forgotten.
The twelve structures you will find along the way act as mediators between these constituents. From afar, they will call to you through an unequivocal silhouette. From within, they will reward your patience with solitude and provide sanctuary to observe what was once Latvia’s mythos. These relics will welcome you whether you seek rest, refuge, warmth, shelter from the elements or a simple pause to contemplate and wonder.
Historically, the Latvian farmstead prioritized privacy, consisting of a central hallway that connected vestibules and yards, with separated rooms on the sides.
The proposed cabin utilizes a rotated parti, transforming what used to be the hallway into a central lightwell that both brings in light and illuminates the shore, while the higher levels maintain independent private rooms.
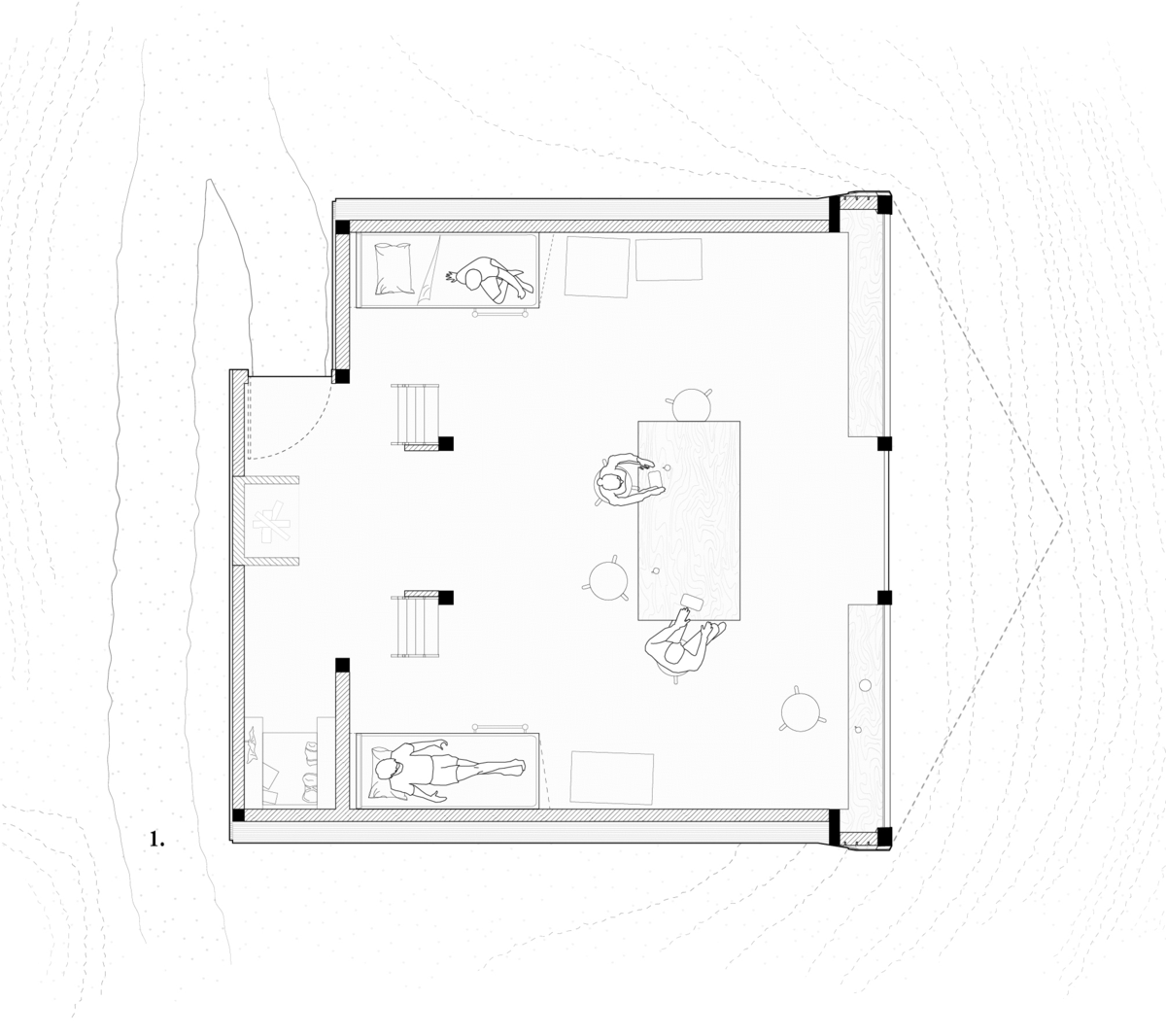
The cabin consists of 3 levels, with the ground level providing an immediate resting space including bunk beds, a fireplace, storage, amenity capsules, seating and views framed by the lightwell. The two levels above contain four reservable private rooms with additional light flooded in by rotatable screens.
In addition to providing an insulated enclosure and a fireplace, the cabin acts as a solarium, utilizing passive sources and techniques to heat and cool the building. These same systems transform the cabin into a lighthouse for trekkers and ships alike.
